< All Case Studies

Engineering > <

A collaborative approach to Tank Upgrades

The Solution

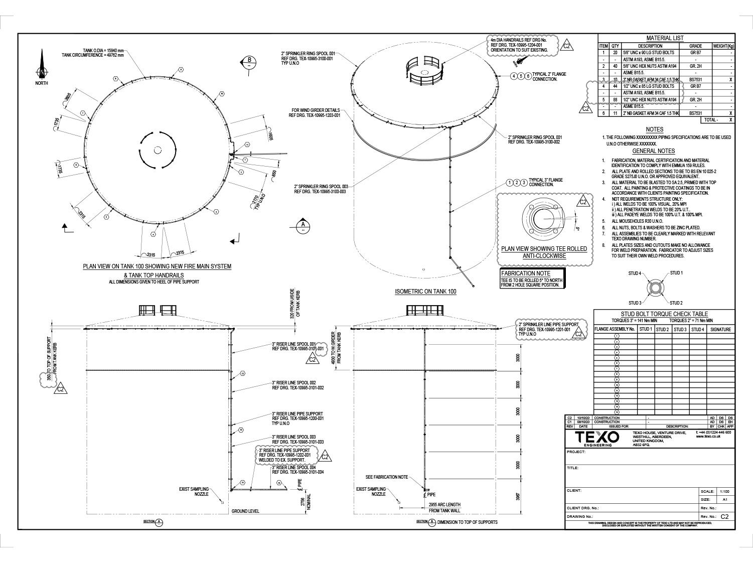
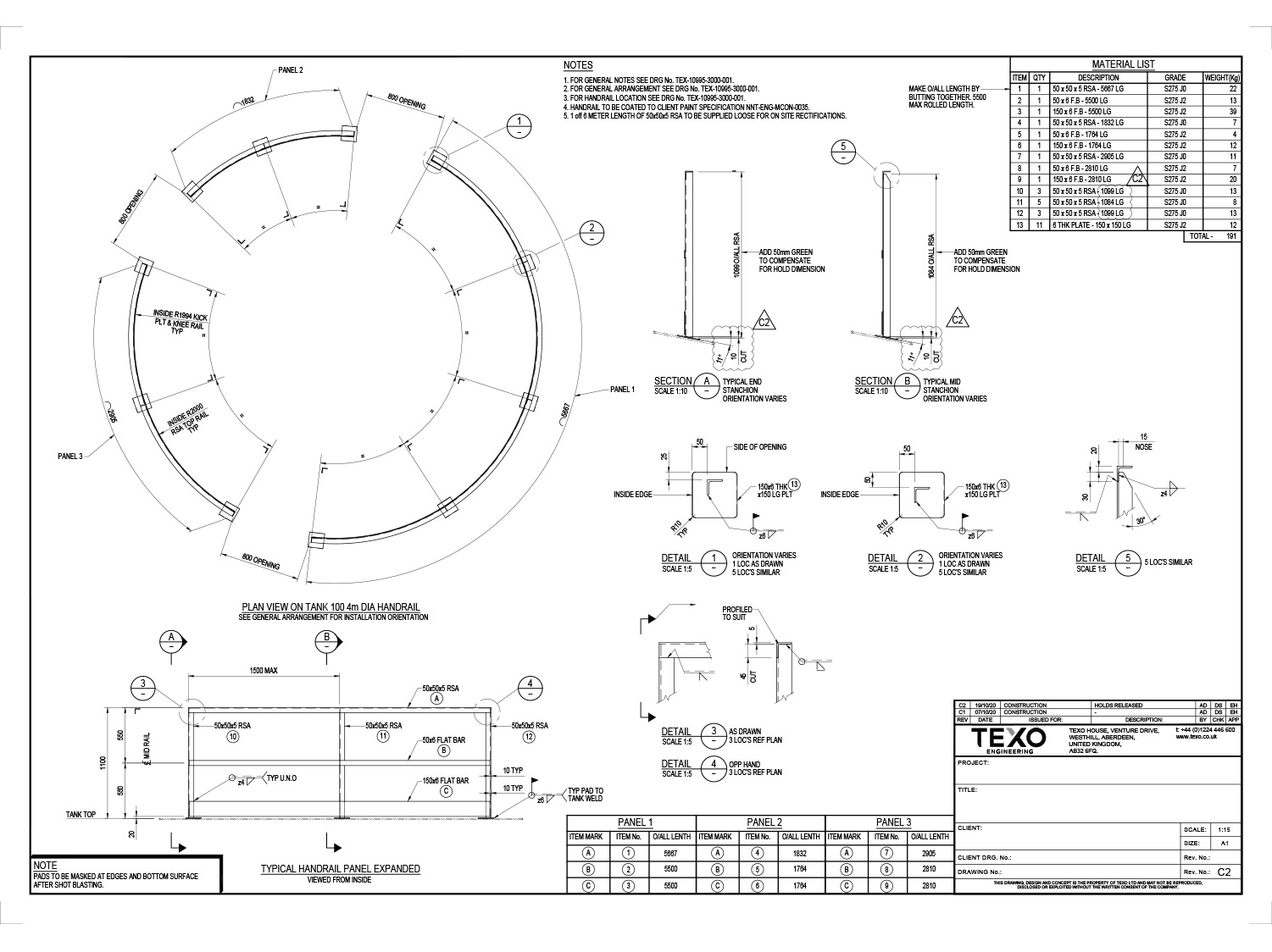
We began by using TEXO DSI 3D scanning expertise to capture all survey data, giving our engineering and design department access to the information of the tanks and the processes for running a variety of relevant checks. This survey data was put into AutoCAD 3D, STAAD.PRO and Recap to give accurate plans.

For TEXO Engineering & Fabrication to make the repairs, we needed both rope access and crane lifting equipment, so that there was no need for erecting potentially unsafe scaffolding. Our team used its installation, welding, and fabrication expertise to manage the maintenance and repairs including structural and piping.

Our TEXO Asset Integrity division managed the inspection & coating scopes.

And TEXO Work-Space Solutions erected a modular office at short notice, to allow a site office for our team at the site.

A collaborative approach to Tank Upgrades

The Result

Working across several of our services areas with multiple TEXO Divisions, this project was a true collaboration, demonstrating both our turnkey project solutions and quick response to site needs. We successfully completed the project within very short timescales and during poor weather.

A collaborative approach to Tank Upgrades

More case studies